Dùng link sau để load
Kiến trúc Ai cập
Kiến trúc Nguyên thủy
Month: August 2010
Nhiệm vụ thiết kế đồ án tổng hợp khoá 51KD
Các sinh viên sẽ được thầy hướng dẫn phân công đồ án theo 1 trong 2 đề sau
Đề số 1 : Trụ sở Thành uỷ Hà Nôi
Thông tin cụ thể về nhiệm vụ xem các link sau
Thành phần chức năng và chỉ tiêu tại đây—> nhiem vu- thanh uy
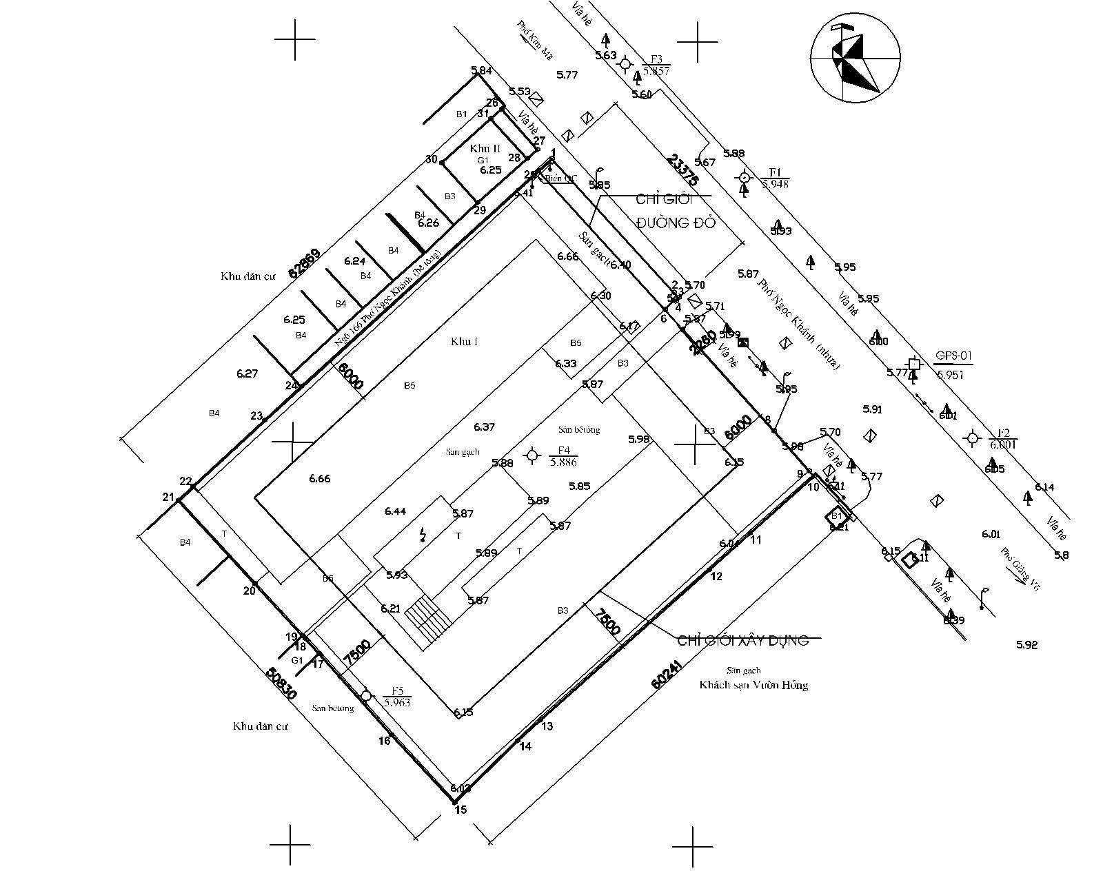
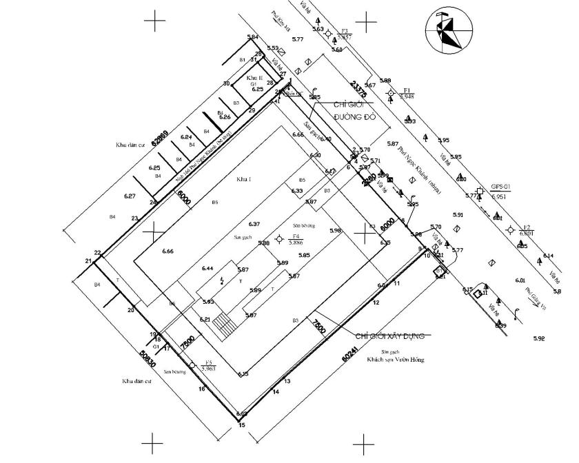
Đề số 2: Tổ hợp nhà ở văn phòng 168 Ngọc khánh
Thông tin cụ thể về nhiệm vụ xem các link sau
Thành phần chức năng và chỉ tiêu tại đây—> nhiem vu168 ngoc khanh


