1. Mở đầu
Thời kỳ Hà Nội nằm dưới sự thống trị của người Pháp chỉ trong khoảng 50 năm (1884 – 1945) là không dài so với lịch sử trên 1000 năm phát triển thủ đô, nhưng dấu ấn mà nó để lại trong kiến trúc nhà ở của những người thị dân nơi đây là rất ấn tượng. Đây có lẽ là thời kỳ biến đổi hình thái kiến trúc nhà ở và cũng là thời kỳ biến đổi về lối sống mạnh mẽ nhất trong lịch sử Hà Nội.
Tìm hiểu quá trình biến đổi kiến trúc nhà ở thị dân Hà Nội không chỉ thấy được sử biến đổi về mặt hình thái kiến trúc mà còn góp phần chỉ ra sự biến đổi văn hóa ở của người Hà Nội thời kỳ này.

2. Nhà ở thị dân Hà Nội cuối triều Nguyễn
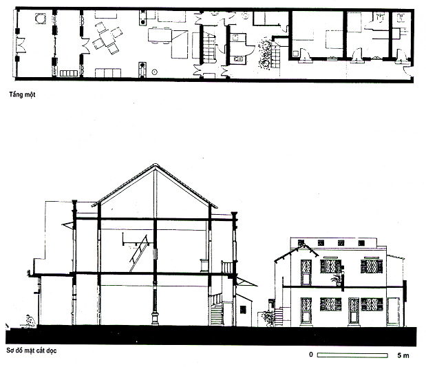
Nhà ở tại khu vực 36 phố phường những năm cuối triều Nguyễn đa phần là những ngôi nhà xây sát nhau có mặt tiền khá hẹp hướng ra phố, toàn bộ cấu trúc chủ yếu ngôi nhà nằm vuông góc với phố và có độ sâu tới vài chục mét tạo ra một hình thức nhà ở đặc biệt thường được gọi là “nhà ống” do tương phản giữa độ sâu và mặt tiền của ngôi nhà.
Loại nhà này thường được chia thành hai thành phần có chức năng khác nhau: Phía ngoài là cửa hàng bao gồm nơi sản xuất, kho chứa, nơi bán hàng; phía trong là nhà ở gồm các phòng ở, khu phụ, sân trong. Nhà được chia thành nhiều lớp phòng, giữa các phòng là sân trong, thông thường có hai sân, một sân trồng cây cảnh, bể cá non bộ có thể coi là sân cảnh, một sân gắn với khu phụ có bể nước được gọi là sân ướt.
Đa phần nhà ở thời kỳ này được xây bằng gạch, mái lợp ngói dốc về hai phía, riêng lớp mái khu phụ chỉ có một dốc, các lớp mái đặt cách nhau tạo ra sân trong, hai đầu đỉnh mái lớp ngoài cùng giáp đường phố có các trụ mái được trang trí đơn giản bằng vữa đắp, tường mái ngăn cách giữa các nhà được xây cao vượt lên khỏi mái có hình bậc thang theo độ dốc mái.
Nhà ở thời kỳ này chỉ có một tầng hoặc một tầng rưỡi, nghĩa là phía trên tầng một phần ngoài của ngôi nhà có một tầng lửng, do vậy mặt đứng nhà khá đơn điệu. Mặt chính ngôi nhà thường xây lùi vào so với các tường biên và mái để tránh mưa nắng, cửa đi và cửa sổ bằng các tấm gỗ ván dày được xếp sát cạnh nhau tạo thành hình thức cửa lùa, tương ứng với phần gác lửng phía trên còn có một lỗ cửa nhỏ để lấy ánh sáng và thông gió, nhưng cũng có nhà không có lỗ cửa này nên phía trên chỉ là mảng tường đặc (hình 1).
3. Sự biến đổi kiến trúc nhà ở thị dân Hà Nội thời Pháp thuộc
Cuối thế kỷ 19 đầu thế kỷ 20, sau khi Hà Nội trở thành nhượng địa của Pháp và sau đó chính thức được coi là thủ đô toàn xứ Đông Dương, người Pháp đã cho chỉnh trang khu 36 phố phường, mở thêm các khu phố mới chủ yếu dành cho tầng lớp trung lưu người Việt ở phía nam hồ Hoàn Kiếm thì những ngôi nhà ở truyền thống bắt đầu có sự biến đổi mạnh mẽ.
Một số ngôi nhà cũ bị phá bỏ và xây dựng lại, nhiều ngôi nhà mới cũng được xây dựng trên các tuyến phố mới mở. Những ngôi nhà đầu tiên có niên đại cuối thế kỷ 19 đầu thế kỷ 20 vẫn giữ nguyên cấu trúc nhà ống, tuy vậy số tầng tại khu ở và cửa hàng đều được nâng lên hai tầng, một vài ngôi nhà tới ba tầng, các sân cảnh và sân ướt vẫn được giữ lại. Tường nhà xây gạch nhưng đã tổ chức móng sâu hơn, mái lợp ngói máy thay cho ngói ta trước đây, sàn tầng 2 thường được cấu tạo bằng gỗ, bê tông cốt thép còn ít được sử dụng.
Mặt tiền các ngôi nhà thời kỳ này cũng trở nên rất phong phú do ảnh hưởng của kiến trúc Pháp. Có hai loại mặt tiền chủ yếu ở thời kỳ này: Mặt tiền ảnh hưởng phong cách Địa phương Pháp, nhà có ban công trên tầng 2, các cửa sổ và cửa đi tổ chức theo phương đứng, cửa sổ có hai lớp kính – chớp, xung quanh cửa và trên trán tường trang trí các hình hoa dây, gờ chỉ theo kiểu Pháp, các con sơn đỡ mái bằng gỗ tiện gần giống với những biệt thự phong cách Địa phương Pháp ở khu phố Tây. Loại mặt tiền thứ hai ảnh hưởng phong cách kiến trúc Tân cổ điển với việc trang trí mặt tường rất cầu kỳ, đặc biệt là bộ phận tường hoa chắn mái được sử dựng rộng rãi. Xung quanh cửa và trên tường các ngôi nhà loại này thường được lấp đầy các hoạ tiết cổ điển, các hình đắp uốn lượn kiểu Baroc, các đầu cột kiểu Ionic, Corinth La Mã được dùng để trang trí cho các bổ trụ. Đặc biệt phần tường hoa chắn mái được trang trí cầu kỳ nhất, bộ phận này luôn được tổ chức đăng đối với một phần giữa nổi bật xây nhô cao, trung tâm phần này được trang trí bằng hoa dây đắp nổi bao lấy một hình tròn hoặc trái soan gần giống hình thức Cartouche mà chúng ta thường thấy ở các công trình hành chính lớn thời bấy giờ, hai bên tường là các hình hoa lá đắp nổi cũng rất cầu kỳ và phong phú (hình 2).

Từ những năm 1930, những ngôi nhà ống được xây dựng mới càng trở nên phổ biến, nhà 2 – 3 tầng cao ráo, một số nhà bỏ các sân ướt chỉ giữ lại sân cảnh do các khu bếp, vệ sinh đã bắt đầu được đưa vào khối ở. Phong cách kiến trúc Art Deco ảnh hưởng rất lớn tới những ngôi nhà kiểu này. Mặt tiền được trang trí giản dị theo phong cách hiện đại, sử dụng hạn chế các hoạ tiết trang trí và được xử lý một cách có cân nhắc, các cửa đi, cửa sổ mở rộng, có ban công rộng rãi do kết cấu bê tông cốt thép đã được sử dụng phổ biến ở thời kỳ này, nhiều nhà còn tổ chức dàn hoa bê tông trên mái (hình 3).

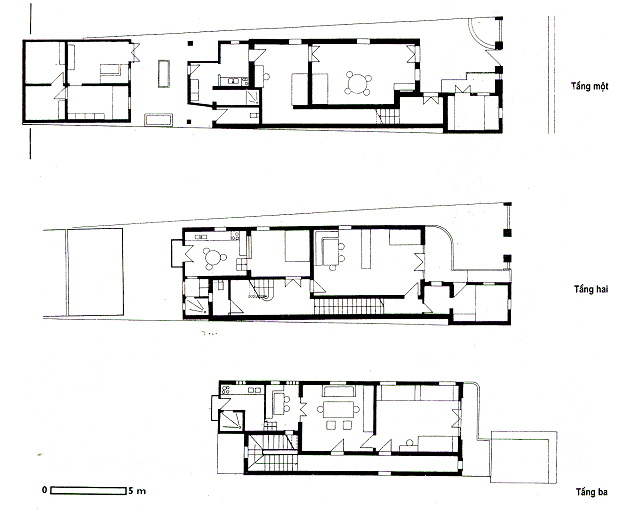
Cũng từ những năm 1930, nhiều ngôi nhà dành cho tầng lớp trung lưu người Việt được xây dựng ở các ô phố thuộc khu vực phía nam hồ Hoàn Kiếm có hình thức pha trộn rất đặc biệt. Nhà được xây dựng trên các lô đất hình chữ nhật kéo dài giống như hình ống song có mặt tiền tương đối rộng. Nhà chính cao hai, ba tầng và được xây lùi lại một khoảng so với hàng rào tạo ra một sân trước nhỏ, tầng 1 bố trí phòng khách, phòng ăn, các phòng ngủ và sinh hoạt gia đình được bố trí trên tầng 2 và tầng 3, ở mỗi tầng đều có khu vệ sinh. Cạnh nhà thường tổ chức một lối đi để có thể đi vào nhà phụ một tầng xây ở cuối khu đất, giữa nhà chính và nhà phụ có một sân cảnh nhỏ. Cách cấu trúc ngôi nhà kiểu này thực ra cũng chưa đạt được tiêu chuẩn của biệt thự xong cũng không còn là nhà ống theo kiểu cổ truyền nên ta có thể coi nó là biệt thự – nhà ống.
Công nghệ xây dựng thời kỳ này đã tiến bộ nhiều nên toàn bộ các sàn và mái nhà đều được đổ toàn khối bằng bê tông cốt thép, vì vậy các phòng ở có diện tích tương đối rộng và chiều cao lớn. Mặt đứng theo phong cách Art Deco với các cửa mở rộng kết hợp với các ban công lớn, sê nô và ô văng bằng bê tông cốt thép vươn ra khỏi mặt đứng cũng là những yếu tố trang trí của những ngôi nhà loại này. Thép uốn được sử dụng rộng rãi để trang trí hàng rào, ban công. Nhìn chung thì đây là sự hoà trộn rõ nét nhất giữa kiến trúc nhà ở đô thị Việt Nam cổ truyền với biệt thự kiểu Pháp (hình 4).
Từ nửa cuối những năm 1930, một số quan lại và tầng lớp giàu có người Việt đã xây dựng những biệt thự hoàn toàn theo kiểu biệt thự của người Pháp. Đây là những biệt thự kiểu hợp khối gồm ba tầng: Tầng 1 bố trí nhà xe, bếp, phòng ở gia nhân, khu vệ sinh, kho; tầng 2 bố trí nhà khách, phòng sinh hoạt gia đình, phòng ăn bố trí gần cầu thang nội bộ để thuận tiện cho việc đưa đồ ăn từ bếp lên; tầng 3 bố trí các phòng ngủ trong đó phòng ngủ chính có cửa đi trực tiếp vào khu vệ sinh. Hình thức kiến trúc của các biệt thự này đa phần theo phong cách Art Deco, một số rất nhỏ theo phong cách kiến trúc Đông Dương, tuy nhiên khuôn viên các biệt thự này thường không lớn bằng các biệt thự ở khu phố dành cho người Pháp và số lượng cũng không nhiều (hình 5).
Bảng 1: Những đặc diểm cơ bản của nhà ở thị dân Hà Nội qua các giai đoạn
|
TT |
Giai đoạn |
Loại nhà chủ đạo |
Đặc điểm kiến trúc |
Khu vực xây dựng |
|
1 |
1884 – 1900 |
Nhà ống cổ truyền | Một tầng, mái ngói, mặt đứng đơn giản. Mặt bằng hẹp và dài, gồm nhiều lớp nhà và sân trong | Khu 36 phố phường |
|
2 |
1900 – 1920 |
Nhà ống cải biên | Hai đến ba tầng, mái ngói, mặt đứng theo kiểu Địa phương Pháp hoặc Tân cổ điển. Mặt bằng thường có hai lớp nhà và một sân trong | Khu 36 phố phường |
|
3 |
1920 – 1945 |
– Biệt thự – nhà ống |
– Biệt thự hoàn chỉnh- Nhà chính hai đến ba tầng, nhà phụ một tầng, mái ngói hoặc mái bằng. Trang trí theo kiểu Địa phương Pháp, Tân cổ điển, Art Deco
– Nhà ba tầng, hợp khối với đầy đủ chức năng ở. Trang trí kiểu Art Deco, một số ít theo kiểu Kiến trúc Đông Dương- Phía bắc Thành cổ (Phường Quán Thánh… hiện nay). Phía nam hồ Hoàn Kiếm (Phường Bùi Thị Xuân, Hàng Bài… hiện nay)
– Gần hồ Trúc Bạch (Phường Trúc Bạch… hiện nay). Tây nam hồ Hoàn Kiếm (Phường Phan Chu Trinh, Trần Hưng Đạo… hiện nay)
4. Bàn luận
Cùng với các tài liệu về lịch sử và văn hóa, việc tìm hiểu quá trình biến đổi hình thái kiến trúc nhà ở thị dân Hà Nội thời Pháp thuộc có thể cho chúng ta mường tượng về quá trình biến đổi văn hóa ở của gười Hà Nội thời kỳ này. Từ cách ở theo kiểu tam, tứ đại đồng đường với rất nhều không gian chung của người thị dân phong kiến chuyển dần sang lối sống có phần tách biệt giữa các thành viên trong gia đình với những không gian riêng biệt do ảnh hưởng từ lối sống Phương Tây đang dần dần được truyền bá, thâm nhập vào từng gia đình. Đặc biệt ở tầng lớp người Việt giàu có, Tây học thì ảnh hưởng này càng rõ rệt, những ngôi nhà tam, tứ đại đồng đường dần nhường chỗ cho các hình thức nhà ở biệt lập, mỗi ngôi nhà là nơi nương náu của một gia đình nhỏ, con cái đã dựng vợ gả chồng không còn sống chung với bố mẹ, thậm chí khi còn sống với bố mẹ thì con cái đã có phòng riêng. Lối sống cộng đồng theo kiểu hàng xóm láng giềng cũng dần phai nhạt cùng với sự phát triển của hình thức nhà ở kiểu biệt thự – nhà ống. Như vậy có thể thấy rằng sự biến đổi hình thái kiến trúc nhà ở phản ánh một cách khá chính xác sự biến đổi văn hóa ở của người dân đô thị Hà Nội dưới thời Pháp thuộc.
- 5. Kết luận
– Thời kỳ Pháp thuộc là không dài so với lịch sử phát triển thành phố nhưng đây lại là thời gian có sự biến đổi mạnh nhất trong kiến trúc nhà ở thị dân Hà Nội.
– Nhà ở thị dân Hà Nội rất phong phú về mặt hình thái kiến trúc tùy thuộc vào thời gian xây dựng, địa điểm xây dựng và vị thế của chủ nhân ngôi nhà trong xã hội.
– Sự biến đổi kiến trúc nhà ở thị dân Hà Nội thời Pháp thuộc phản ánh khá rõ nét sự biến đổi về mặt lối sống, văn hóa ở của người Hà Nội thời kỳ này.
– Những giá trị to lớn về mặt kiến trúc, về mặt văn hóa của nhà ở thị dân Hà Nội thời Pháp thuộc và sự xuống cấp của chúng vì nhiều nguyên nhân đặt ra yêu cầu cho các cấp chính quyền phải nhanh chóng đưa ra các quy chế về mặt quản lý và giải pháp về mặt bảo tồn bộ phận di sản này.
—————–
- THS. KTS. Trần Quốc Bảo
- Giảng viên chính khoa Kiến trúc và Quy hoạch, Đại học Xây dựng
- Email: tqbao2000@gmail.com
- Mobile: 0903255640
5. TÀI LIỆU THAM KHẢO
Tiếng Việt
- Đặng Thái Hoàng: Kiến trúc Hà Nội thế kỷ XIX – XX. NXB Hà Nội, 1995.
- F.Teronobu, Phạm Đình Việt và cộng sự: Bảo tồn di sản kiến trúc Hà Nội. NXB Xây dựng, 1997.
- Kiến trúc các công trình xây dựng tại Hà Nội (1875 – 1945), NXB Thế giới, 2009.
- Trần Hùng, Nguyễn Quốc Thông: Thăng Long – Hà Nội, mười thế kỷ đô thị hoá. NXB Xây dựng, 2004.
- 5. Trần Quốc Bảo, Nguyễn Văn Đỉnh: Kiến trúc và quy hoạch Hà Nội thời Pháp thuộc. NXB Xây dựng, 2011.
- 6. V. Malherbe: Hà Nội, giấc mơ Tây phương ở Viễn Đông, Tổng cục thống kê Di sản văn hóa Pháp, 2009.
Tiếng Pháp
- A. Le Brusq, L. de Selva : Vietnam à travers l’architecture coloniale, Les Éditions de l’Amateur, 2011.
- Institut national du patrimoine : Architecture coloniale et patrimoine, Édition d’Art, 2005.
- P. Clément, N. Lancret và cộng sự : Hanoi – le cycle des étamorphoses. Ipraus et Édition Recherches, 2001.

