
Tác giả: KTS. Nguyễn Toàn Thắng
Sự phát triển nhà cao tầng trong các đô thị lớn tại Việt Nam là tất yếu. Đặc biệt, nhà cao tầng tại khu trung tâm của các thành phố Hà Nội, thành phố HCM với điều kiện quỹ đất rất chật hẹp có xu hướng phát triển mô hình nhà cao tầng hỗn hợp chức năng theo chiều thẳng đứng.
Để đảm bảo khả năng thay đổi không gian công năng theo chiều đứng, từ các tầng hầm gara ô tô, khối đế làm siêu thị thương mại, trung tâm hội thảo, rạp chiếu phim, sân vườn bể bơi với không gian lớn, chuyển thành các không gian nhỏ để bố trí chức năng ở, làm việc trên khối tháp chúng ta cần có một hệ thống dầm đủ lớn để phân phối truyền tải lực từ nhiều cột, vách nhỏ ở phía trên xuống các cột có khoảng cách lớn ở phía dưới. Đó chính là kết cấu dầm chuyển, hay còn gọi là sàn chuyển. Kết cấu dầm chuyển không chỉ tạo ra các không gian chức năng linh hoạt mà còn đóng vai trò làm tầng tăng cứng không thể thiếu trong kết cấu nhà cao tầng.
Thời gian gần đây, giải pháp dầm chuyển trong thiết kế kiến trúc nhà cao tầng đã được sử dụng mạnh mẽ. Tại Hà nội, các công trình sử dụng dầm chuyển tiêu biểu như toà nhà Dolphin Plaza, Trụ sở mới Bộ Công An, Sky forest Ecopark … Các công trình nhà cao tầng sử dụng giải pháp dầm chuyển đã giúp các kiến trúc sư sáng tạo các kiến trúc cao tầng có không gian chức năng thay đổi đa dạng và tạo hình kiến trúc đặc sắc.
Toà nhà Dolphin Plaza, phố Trần Bình, Hà Nội. Thiết kế: DP Architect.

Trụ sở Bộ Công An, đường Phạm Văn Đồng, Hà Nội. Thiết kế: GMP.
Sử dụng dầm chuyển để thay đổi tiết diện cột, vách mà không làm thay đổi hệ thống lưới cột vách giữa các tầng trên và tầng dưới công trình. Các không gian như tầng hầm để xe ô tô, trung tâm thương mại khối đế với các cột có tiêt diện lớn, chuyển thành hệ vách mỏng với tiết diện dài hẹp thích hợp bố trí các tầng căn hộ trên khối tháp. Dầm chuyển trong trường hợp này chỉ đóng vai trò điều chỉnh lại tải trọng từ các vách về tập trung tại các đỉnh cột nên kích thước tiết diện dầm chuyển không lớn. Ưu điểm nổi bật của cấu trúc này là nội thất các căn hộ sẽ không còn bị hệ thống cột có tiết diện lớn chiếm giữ không gian các phòng nhỏ, cột sẽ được chuyển đổi thành các vách mỏng và dài nằm ngầm hoàn toàn trong tường ngăn giữa các các căn hộ. Diện tích sử dụng căn hộ tăng thêm khoảng 2%, trong khi cấu trúc lưới cột ở phần hầm và đế công trình vẫn đáp ứng các chức năng đa dạng. Giải pháp này đem lại sự tối ưu cho mặt bằng công năng và nhiều lợi ích cho các nhà phát triển dự án nên được áp dụng tích cực trong thiết kế nhà ở, khách sạn cao tầng.
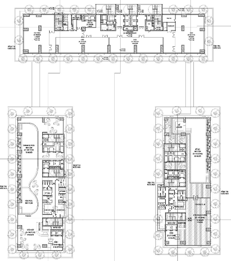
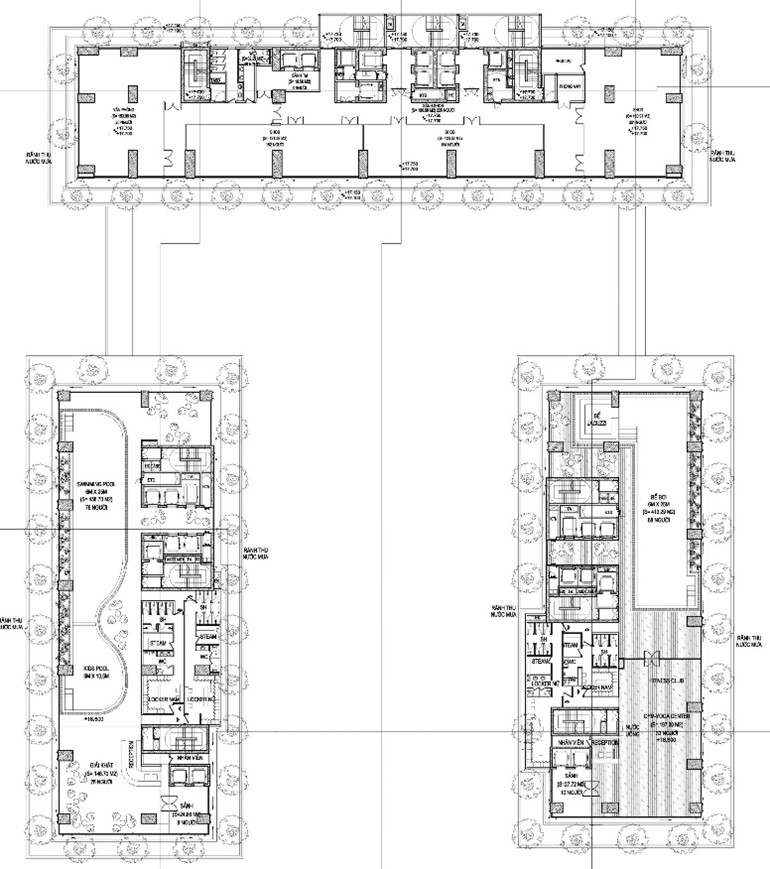
Dự án nhà ở, căn hộ khách sạn Condotel Hạ Long : sử dụng dầm chuyển để điều chỉnh tiết diện cột vách phù hợp với các không gian chức năng gara ô tô, dịch vụ công cộng và căn hộ tại các tầng hầm, tầng đế và khối tháp. Thiết kế : KTS. Nguyễn Toàn Thắng.





Ở những thiết kế mang tính đột phá, sử dụng dầm chuyển để tạo ra các không gian lớn trong cấu trúc của nhà cao tầng. Trường hợp này, vai trò cực kỳ quan trọng của dầm chuyển là phân phối lại tải trọng thẳng đứng, giúp tạo ra các thay đổi lớn về hệ lưới cột vách giữa các tầng trên và tầng dưới công trình. Loại dầm này thường có độ cứng và tiết diện hình học lớn. Một công trình có thể có nhiều tầng dầm chuyển để đáp ứng đa dạng không gian chức năng trên các tầng cao khác nhau.
Tổ hợp The Interlace, Gillman Heights, Singapore: sử dụng dầm chuyển tạo ra các không gian chức năng đa dạng, không chỉ thành công về hình thức kiến trúc ấn tượng mà còn là minh chứng cho sự kết nối không gian cộng đồng và thiên nhiên. Thiết kế kiến trúc OMA.



Mặc dù hiện tại còn một số trở ngại về kỹ thuật và điều kiện kinh tế, nhưng rõ ràng với các ưu thế vượt trội, cấu trúc dầm chuyển đã bắt đầu được ứng dụng thành công trong thiết kế công trình cao tầng, làm thay đổi tư duy sáng tạo của kiến trúc sư. Một tương lai mới trong thiết kế nhà cao tầng đang mở ra.
Tài liệu tham khảo
- Võ Mạnh Tùng, Mô hình tính toán kết cấu dầm chuyển trong thiết kế nhà cao tầng, tạp chí Khoa học Công nghệ Xây dựng NUCE, 2019. 13(4V): 12-21.
- Nguyễn Toàn Thắng/ CCU, Báo cáo nghiên cứu khả thi Dự án nhà ở, căn hộ khách sạn Condotel Hạ Long, 2020.
- http://vncc.vn/du-an-phat-trien/tru-so-bo-cong-an-da-23905/
- https//kienviet.net/2017/03/21/ the Interlace: Những phân vị ngang tối ưu cho vùng nhiệt đới/OMA.
