Tòa nhà Quốc hội nằm ở Phố Cộng hòa thuộc dự án quy hoạch khu vực cổng vào của Thành phố Valletta. Tòa nhà nằm liền kề pháo đài cổ Saint James Cavalier và những tàn tích của Nhà hát Opera quốc gia, đối diện Khu mua sắm City Gate và Cung điện Ferreria.
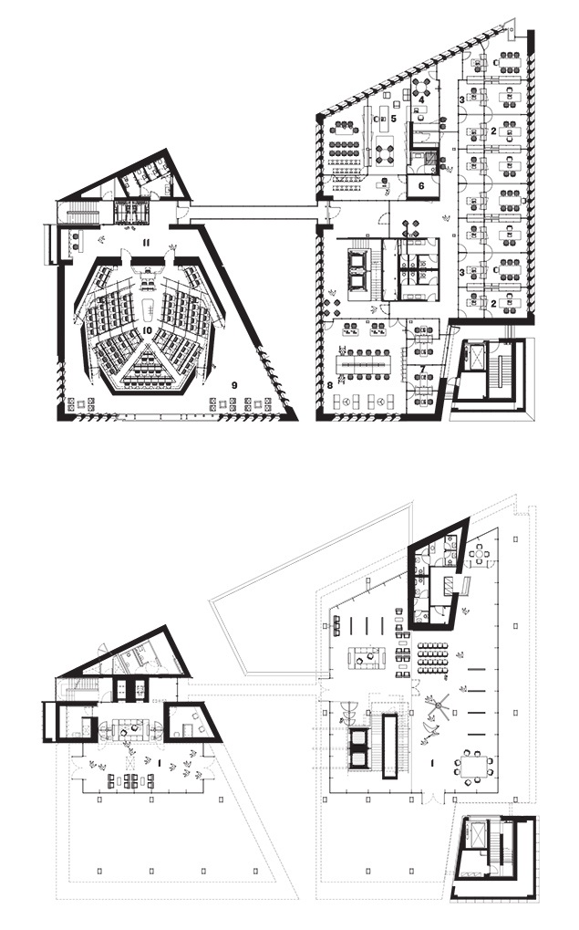
Tòa nhà Quốc hội bao gồm hai khối được kết nối với nhau bằng những cây cầu, một trong số đó là phòng của quốc hội. Hai khối này tách biệt nhau để không che khuất tầm nhìn của pháo đài cổ Saint James Cavalier từ đường Cộng hòa. Mỗi khối có ba tầng. Cấu trúc bao gồm một khung thép bên trong và bọc ngoài là lớp đá vôi Gozitan với 7000 viên đá. Các phiến đá được chạm khắc theo cách mà dường như chúng đã bị xói mòn bởi thiên nhiên.
Tòa nhà của Piano, nằm ngay cổng vào thành phố, được tách thành khối nhà – một khối chứa phòng tranh luận, các văn phòng phụ trợ khác và các phòng ủy ban. Cả hai đều là những hộp đá vôi được đặt trên các tiền sảnh lối vào tầng trệt được

Công trình có giá trị vượt ra ngoài tòa nhà quốc hội, xung quanh công trình là khu vực bao gồm các bức tường thành, cổng của thành phố lân cận, kề đó là tàn tích của nhà hát opera của thủ đô đã bị ném bom trong Chiến tranh thế giới thứ hai .
Sử dụng năng lượng và bảo vệ môi trường là yêu cầu chính trong thiết kế của tòa nhà này. Một mặt, đá được sử dụng cho mặt tiền của tòa nhà để làm giảm sự tăng nhiệt mặt trời, cho phép thông gió tự nhiên,có hiệu quả như là một phần của bộ trao đổi nhiệt địa nhiệt của tòa nhà. Ngoài ra, mái nhà được bao phủ bởi 600 tấm pin quang điện – một chiến lược năng lượng đầy tham vọng cho phép tòa nhà tạo ra 80% năng lượng cần thiết để sưởi ấm vào mùa đông và 60% yêu cầu của nó để làm mát tòa nhà trong những tháng mùa hè .
Công trình sử dụng đá ốp ngoài, tạo nên xúc cảm thời gian của công trình, gợi lên tính bản địa, di sản của thành phố. Các tấm ốp bằng đá, xuyên thủng hoặc đặc. Việc cắt laser các khối, để chúng tạo ra góc nghiêng , cho phép nhìn thoáng qua nội thất và hiệu quả lọc ánh sáng mặt trời cao.
Trong phòng quốc hội, phòng tranh luận hình bát giác được lót bằng đá có đường kính 22m vang vọng tiếng bởi những tấm bia đá góc cạnh.
Điều khác biệt tại công trình này là sự liên kết với các không gian công cộng bên cạnh nó, khu vườn cây, nhà hát, phố đi bộ…. Ý nghĩa công trình là mong muốn người dân và chính phủ được kết nối, không có khoảng cách thứ bậc tồn tại. Một số tổ chức và các hoạt động liên quan đến quốc hội sẽ được đặt ở tầng hầm của tòa nhà, mở ra một khoảng sân rợp bóng cây. Khu vực hầm đường sắt cũ của Malta cũng được kết nối với không gian vườn này. Kiến trúc sư Renzo Piano đã khôi phục cấu trúc ngầm cũ trước đây được sử dụng làm nhà để xe và giúp cho người dân cũng có thể tiếp cận khu vực này. Một nhà hát ngoài trời được dựng lên ngay chính tàn tích của nhà hát Thành phố cũ.
Tổ hợp các công trình mang tính hiện đại, hoành tráng, tạo cho một cảm giác mới, không gian mới kết nối cho thành phố Malta
Nguồn:
https://en.wikipedia.org/wiki/Parliament_House_(Malta)
https://www.archdaily.com/632066/valletta-city-gate-renzo-piano
https://www.designboom.com/architecture/renzo-piano-valletta-city-gate-and-parliament-well-underway/
https://www.designboom.com/architecture/renzo-piano-valletta-city-gate-malta-05-20-2015/