TS.KTS. Đỗ Trọng Chung, Trưởng Bộ môn Lý thuyết & Lịch sử kiến trúc, khoa Kiến trúc & Quy hoạch, trường đại học Xây dựng HN; địa chỉ: số 55 đường Giải phóng, quận Hai Bà Trưng, HN; ĐT di động: 0916636999.
Cuối thế kỷ 19 đầu thế kỷ 20, người ta phát hiện ra chất phóng xạ và nó được ứng dụng vào điều trị cho một số các tổn thương ung thư. Từ đó ngành trị xạ ra đời và phát triển không ngừng. Thông thường khoa điều trị bằng phương pháp phóng xạ hoạt động dưới hai dạng điều trị: một là sử dụng đồng vị phóng xạ và hai là dùng máy gia tốc tuyến tính. Đồng vị phóng xạ được sử dụng trị liệu phóng xạ sâu còn máy gia tốc tuyến tính sử dụng kỹ thuật để điều trị các bệnh [3]. Hiện nay đã sử dụng kỹ thuật CyberKnife – đó là thiết bị xạ phẫu chuyên dụng, cho phép điều trị phẫu thuật bằng tia xạ các tổn thương ở mọi vị trí trên cơ thể.
Việc nghiên cứu lý thuyết và thiết kế về không gian kiến trúc cho khoa điều trị bằng phương pháp phóng xạ (KĐTBPPPX) ở thế giới đã có từ khi nó ra đời, tuy nhiên những công nghệ và thiết bị của khoa KĐTBPPPX thay đổi liên tục nên vấn đề thiết kế và xây dựng không gian cho khoa này cũng phải phải thay đổi theo. ở Việt Nam việc hướng dẫn bằng lý thuyết thiết kế và xây dựng cho khoa điều trị bằng phương pháp phóng xạ được đề cập tới rất ít hoặc chưa sâu.
Vấn đề thiết kế và xây dựng khoa điều trị bằng phương pháp phóng xạ trong các bệnh viện hiện đại đòi hỏi sự chuẩn mực về dây chuyền công nghệ, các không gian phải đủ diện tích hoạt động của các thiết bị, thuận tiện cho các thao tác của các kỹ sư vật lý, nhân viên y tế và tiện nghi đối với người bệnh. Đồng thời công tác bảo đảm sự an toàn, tránh sự phát xạ do nguồn phóng xạ của các thiết bị gây ra cần phải lưu tâm đặc biệt.
1. Vị trí:
Khoa KĐTBPPPX phải nằm trong một khuôn viên riêng biệt để có thể tránh được tác động cố hữu do nguồn phóng xạ gây ra. Đặc biệt là phòng điều trị phóng xạ phải đặt ở một vị trí riêng, không có một khoa nào khác hoạt động ở phía dưới hoặc trên nó.Đồng thời KĐTBPPPX được liên hệ với các bộ phận khác trong bệnh viện bằng hệ thống nhà cầu hay các tuyến giao thông khác, tuy nhiên phải thuận tiện việc đi lại cho bệnh nhân điều trị nội trú, cũng như bệnh nhân điều trị ngoại trú và các bệnh nhân cấp cứu khác. Lối vào chính của khoa cần phải bố trí đường dốc để đẩy xe cáng bệnh nhân và xe lăn cho người tàn tật.
2. Cơ cấu không gian và yêu cầu thiết kế:
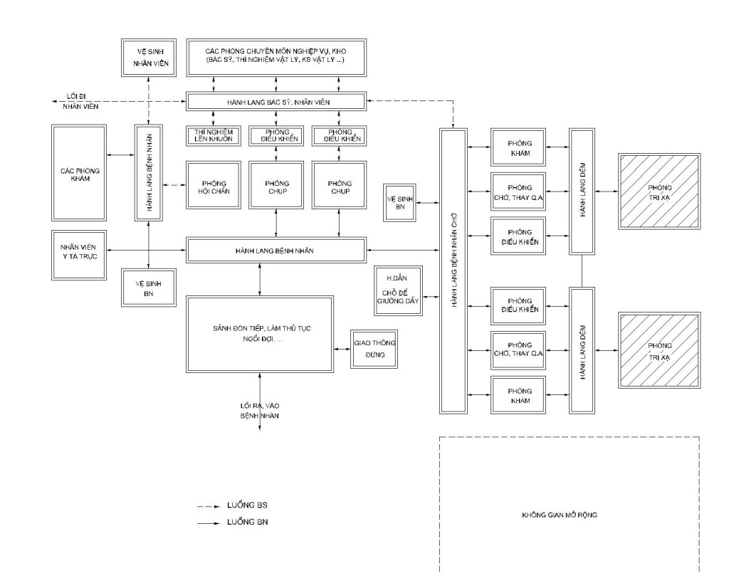
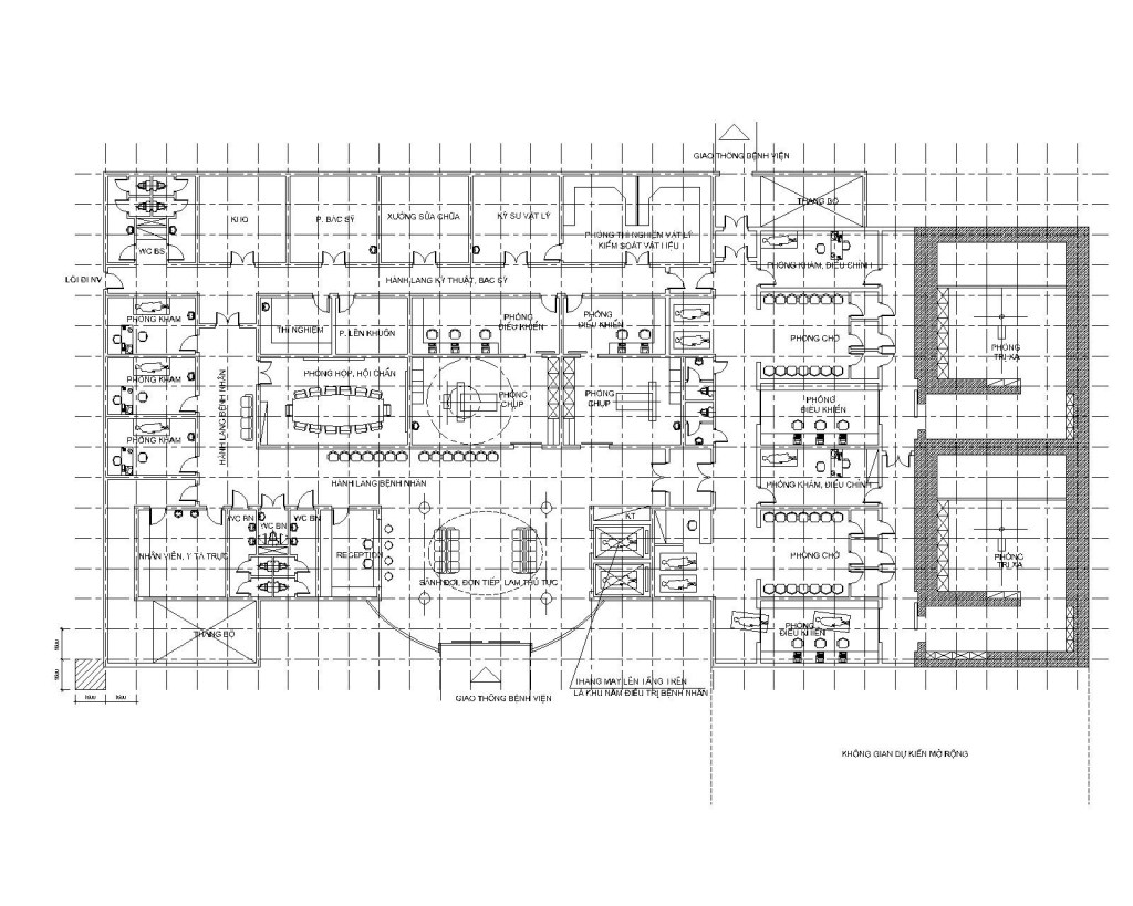
Cơ cấu về không gian của khoa điều trị bằng phương pháp phóng xạ bao gồm tối thiểu các phòng chức năng sau (xem Hình 2):
Khu lễ tân đón tiếp, sảnh; – Phòng chờ; – Phòng hội chẩn; – Phòng bác sỹ, khám, thư ký; – Nhân viên, y tá trực; – Phòng lên khuôn (có thể có); – Phòng thí nghiệm, kiểm tra, kỹ sư vật lý; – Phòng X-quang, C.T.Scanner; – Phòng điều trị phóng xạ (Dao Gamma, máy gia tốc tuyến tính, CyberKnife); – Phòng điều khiển; – Phòng thay đồ bệnh nhân; – Phòng bác sỹ vật lý; – Kho, vệ sinh bệnh nhân, vệ sinh bác sỹ; – Khu nằm điều trị và phòng điều trị hoá [1, 2].
- Phòng chờ:
Được bố trí gần phòng điều trị phóng xạ, mỗi một máy điều trị phóng xạ bố trí một phòng chờ khoảng 10 – 12 ghế ngồi chờ, đồng thời khu hành lang chờ có bố trí chỗ cho các xe cáng, khoảng 2 xe cáng/ 1 máy điều trị phóng xạ. Vì các bệnh nhân đến đây gần như mắc các bệnh về ung thư nên họ có tâm trạng rất căng thẳng, vì vậy việc thiết kế không gian nội thất cho phòng chờ cần phải tạo ra không gian ấm cúng thoải mái. Người thiết kế có thể dùng các gam màu ấm cho sàn, tường và trần. Phòng chờ thiết kế sao cho không quan sát được các thao tác của phòng điều trị. Trần của phòng chờ cao tối thiểu là 3m. Diện tích một phòng chờ khoảng 15 – 18m2 là hợp lý.
- Phòng hội chẩn:
Yêu cầu tối thiểu phải có một phòng hội chẩn trong khoa điều trị bằng phương pháp phóng xạ, với chức năng là hội thảo để đưa ra phương án điều trị cho một ca bệnh, đồng thời nơi này cũng có chức năng để bồi dưỡng nghiệp vụ cho các nhân viên y tế hay các sinh viên y khoa thuộc chuyên ngành này. Phòng hội chẩn được bố trí trong khu vực hành lang bác sỹ. Yêu cầu về không gian cho một phòng hội chẩn là có thể bố trí được từ 15 – 25 chỗ cho các bác sỹ và nhân viên y tế, khi thiết kế nội thất bàn ghế cần có phương án đa năng có thể kê theo kiểu lớp học hay kiểu bàn tròn. Trong phòng hội chẩn phải bố trí vị trí đặt máy chiếu, màn chiếu, các giá để đọc phim, các tủ tài liệu. Diện tích tối thiểu cho một phòng hội chẩn là 36m2, yều cầu phải cách âm với bên ngoài tránh bệnh nhân nghe được các thông tin không cần thiết. Sàn phòng hội chẩn nên trải thảm, trần cao tối thiểu là 3m, thông thường trong các phòng hội chẩn tường và trần hay dùng màu sáng.
- Phòng bác sỹ, khám, thư ký:
Thông thường các phòng bác sỹ, khám, thư ký được tập trung tại một khu vực có lối đi riêng độc lập với luồng bệnh nhân. Yêu cầu tối thiểu cho mỗi máy điều trị phóng xạ bố trí một phòng bác sỹ, một phòng khám liền kề phòng bác sỹ, đồng thời có phòng thư ký bên cạnh. Phòng khám và phòng bác sỹ phải bố trí các chậu rửa tay, các giá để đọc phim, mỗi phòng khám cần bố trí một giường khám chuyên dụng. Diện tích tối thiểu cho một phòng khám là 18m2, phòng bác sỹ là 18m2, phòng thư ký là 9-12m2, về không gian nội thất cần có ánh sáng nhẹ không gây chói mắt cho bệnh nhân, bố trí được ánh sáng tự nhiên là tốt nhất hoặc dùng ánh sáng gián tiếp. Để việc vệ sinh được dễ dàng, tường các phòng này cần phải ốp gạch men kính, sàn lát gạch ceramic màu sáng, trần cao tối thiểu là 3m. Nhiệt độ trong phòng khoảng 250C [2].
- Phòng nhân viên, y tá trực:
Được bố trí trong khu vực hành lang bác sỹ, trong phòng có bố trí giường nghỉ cho nhân viên trực đêm, bàn uống nước, các chậu rửa tay. Diện tích phòng nhân viên từ 18-24m2, phòng này không có các yêu cầu gì đặc biệt, tuy nhiên khi thiết kế cũng cần phải nghiên cứu sao cho không gian được thông thoáng sạch sẽ, sử dụng các gam màu tường và trần ấm cúng hay sáng nhẹ là hợp lý.
- Phòng thí nghiệm, kiểm tra, kỹ sư vật lý:
Trong khoa y học hạt nhân phải bố trí một khu vực cho thí nghiệm, kiểm tra chất lượng, một phòng cho nhà vật lý học. Các phòng này được bố trí trong khu vực hành lang bác sỹ, không gian phòng kỹ sư vật lý được liên hệ với phòng thí nghiệm. Diện tích phòng kỹ sư vật lý khoảng 15-18m2, phòng thí nghiệm khoảng 18-24m2. Trong phòng thí nghiệm bố trí các bàn, labo có tủ tài liệu. Trần cao tối thiểu là 3,6m, khi thiết kế cần có sự cộng tác của các kỹ sư vật lý để có những hướng dẫn và yêu cầu về chống các tia phóng xạ cho các bộ phận khác, đặc biệt là khu vực Hotlab.
- Phòng điều trị phóng xạ (Hệ thống mới nhất- CyberKnife):
Phòng này là hạt nhân của khoa, trong phòng có bố trí một máy điều trị xạ phẫu. Trước đây, người ta đã sử dụng hai phương pháp điều trị các khối u bằng dao Gamma (Gamma Knife) và máy gia tốc tuyến tính. Tuy nhiên hai phương pháp này cũng có những nhược điểm nhất định. Hiện nay với kỹ thuật mới nhất, trong một số bệnh viện đã sử dụng hệ thống CyberKnife (Dao Cyber). CyberKnife là một máy gia tốc tuyến tính phát ra chùm tia X có mức năng lượng ổn định là 6 MeV và được gắn trên một cánh tay robot, nhờ cánh tay robot này mang máy gia tốc có thể chiếu tia điều trị các tổn thương có hình thái khác nhau, ở các vị trí khác nhau trong cơ thể và bảo vệ được các mô lành xung quanh – đó chính là các ưu điểm vượt trội của CyberKnife so với những thiết bị trước đó. Khi thiết kế và xây dựng phòng này cần lưu ý toàn bộ kết cấu bao che: tường, trần, nền của phòng điều trị phóng xạ phải được đổ bằng bê tông cốt thép dày từ 600 – 1200 mm và được dát chì, sau đó dùng các vật liệu ốp lát trang trí phía ngoài như gỗ, sơn hoặc ốp đá. Chú ý các thiết bị khung thép, ống đi cáp cấp điện, ống cấp nước, các đường ống cấp khí… cần có những biện pháp phòng chống các chất phóng xạ phát tán ra bên ngoài. Nội thất trong phòng cần được thiết kế bởi các gam màu nhẹ nhàng không gây căng thẳng, trên tường có thể treo những bức tranh phong cảnh đồng quê tạo cho bệnh nhân những cảm giác gần gũi bớt đi sự sợ hãi bởi các thiết bị lạnh nhạt tạo lên (xem Hình1). Diện tích tối thiểu của phòng điều trị phóng xạ là 36m2, trần có độ cao tối thiểu là 3,3m. Hệ thống cửa phải thiết kế theo tiêu chuẩn riêng, dạng cánh trượt tự động có các lớp chống phóng xạ và phải được lắp hệ thống đèn cảnh báo phóng xạ khi đang làm việc. Tóm lại trước khi thiết kế phòng này, người thiết kế cần phải tham khảo các ý kiến của các chuyên gia trong lĩnh vực này (các kỹ sư vật lý và các bác sỹ chuyên ngành) để đưa ra các giải pháp an toàn và tốt nhất.
- Phòng điều khiển:
Mỗi một phòng điều khiển đi kèm với một phòng điều trị phóng xạ, được bố trí bên cạnh phòng điều trị phóng xạ. Phòng điều khiển có diện tích tối thiểu là 12 – 15m2, bên trong được bố trí hệ thống các máy tính kết nối với camera đặt trong phòng điều trị và kết nối với CyberKnife.
- Khu nằm điều trị và phòng điều trị hoá:
Thông thường khu nằm điều trị và các phòng điều trị hoá được bố trí tầng trên của khu khám và các phòng chức năng tại tầng một của khoa. Mỗi phòng điều trị được bố trí từ 2 – 3 giường, có khu WC riêng biệt, các phòng phải có các cửa sổ lấy ánh sáng tự nhiên, nhiệt độ trong phòng khoảng 25 – 270C. Diện tích cho mỗi phòng nằm điều trị 2 giường tối thiểu là 15m2, khu vực đầu giường cần lắp các hệ thống cung cấp khí, các ổ cắm thiết bị chuyên dụng, nút gọi y tá …
Các phòng điều trị hoá: các bệnh nhân điều trị hoá sẽ được tiêm bởi các chất phóng xạ và được điều trị trong trạng thái cách ly một số ngày nhất định. Do đó, khi thiết kế phòng này cần có những biện pháp chống các tia phóng xạ phát tán ra bên ngoài, các cửa sổ cần làm bằng kính chì chuyên dụng, trong phòng có WC riêng biệt, bố trí các thiết bị dành riêng cho cá nhân.
Tóm lại:
Khoa điều trị bằng phương pháp phóng xạ (y học hạt nhân) là bộ phận quan trọng trong khối nghiệp vụ kỹ thuật của các bệnh viện hiện đại. Tại đó tập trung các kỹ thuật cao nhất trong khám và điều trị bệnh, tuy nhiên lại chịu sự thay đổi nhanh nhất để phù hợp với sự phát triển chóng mặt của tiến bộ khoa học công nghệ nói chung và công nghệ y học nói riêng, đặc biệt là lĩnh vực trang thiết bị y tế.
Khi thiết kế xây dựng không gian khoa điều trị bằng phương pháp phóng xạ trong các bệnh viện cần phải có sự kết hợp chặt chẽ của Nhà đầu tư (quản lý), Nhà sử dụng (BS, KS), Nhà thiết kế (các KTS, KS), Nhà thầu xây dựng, Nhà cung cấp thiết bị nhằm mang lại hiệu quả tốt nhất để phục vụ Người bệnh. Đó là sự ràng buộc chặt chẽ giữa bệnh nhân – bác sỹ – thiết bị – kiến trúc và môi trường … Việc nghiên cứu ban hành thiết kế điển hình khoa điều trị bằng phương pháp phóng xạ theo phương pháp thiết kế Catalog nhằm mang lại sự chính xác cao cho các thiết bị đặt trong các không gian kiến trúc. Đồng thời dây chuyền chức năng phải tuân thủ chặt chẽ hai luồng một chiều sạch và bẩn (luồng bác sỹ và bệnh nhân).
Tài liệu tham khảo
1. Christoph Schirmer, Philipp Meuser (2006), Hospital Architecture – General Hospital and Health Centres.
2. Christoph Schirmer, Philipp Meuser (2006), Hospital Architecture – Specialics Clinics and Medical Departments..
3. GD. Kunders, S. Gopinath, A. Katakam, Hospitals – Planning Deisgn and Management, Tata MCGraw – Hill Publishing Company Limited, 1999 (third reprint 2001).


