Được tài trợ chung với Chính phủ Liên bang Úc, thông qua “Quỹ Y tế và Bệnh viện”, Trung tâm Chăm sóc Sức khỏe Cộng đồng Ballarat tạo ra một cách tiếp cận mới để cung cấp dịch vụ y tế chất lượng và giá cả phải chăng cho cộng đồng khu Ballarat và cộng đồng rộng lớn hơn xung quanh đó.
Concept thiết kế của công trình là cung cấp một môi trường lành mạnh, kích thích, dựa trên triết lý “toàn bộ cuộc sống lấy cảm hứng từ những lợi ích của việc tiếp xúc với thiên nhiên và cộng đồng”.

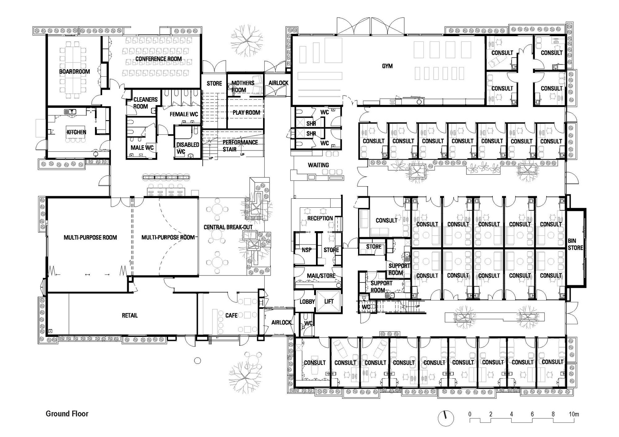
Ý tưởng tổ chức cơ bản cho tòa nhà nhằm tối đa hóa tiềm năng của tòa nhà để tương tác với cộng đồng. Một “cột sống” giao thông hai chiều chạy qua trung tâm của tòa nhà, trở thành một trải nghiệm liên tục về không khí, ánh sáng và cảnh quan. Cột sống cảnh quan này cung cấp một cách rõ ràng thông qua tòa nhà và xác định một loạt các không gian để sử dụng thụ động và chủ động. Một cầu thang ấn tượng ở cuối “cột sống” và hỗ trợ các sự kiện cộng đồng đa dạng và phong phú. Khả năng mở các không gian đa năng liền kề cho phép cấu trúc mở rộng hoặc co lại theo yêu cầu.

Bên ngoài là hình ảnh bóng dáng của “mái nhà” – cảnh quan được thiết kế để tích hợp địa điểm và cộng đồng, vang vọng cả hai hình thức theo ngữ cảnh và khu vực và cung cấp một bản sắc thống nhất duy nhất cho cộng đồng Ballarat.

Người sử dụng công trình đến từ các nền tảng văn hóa và thế hệ lứa tuổi khác nhau cùng vào các dịch vụ được cung cấp, vì vậy điều quan trọng là tòa nhà được chào đón và hấp dẫn. Thiên nhiên được là liên kết chung giữa các nhóm đa dạng này. Các vật liệu địa phương được sử dụng bao gồm gạch, gỗ tái chế, tấm ốp kim loại và polycarbonate được tích hợp theo cách hiện đại. Các khu vườn bên trong, giàn giáo bằng gỗ, lát đường và đèn đường đã được tích hợp trong suốt. Tái chế gỗ và gạch đã được kết hợp với sự ấm áp và kết cấu của nó, để tương phản với cảm giác lạnh lẽo ở các cơ sở y tế.

Sự hợp tác cao của khách hàng đến khám chữa bệnh và trung tâm là cơ bản trong việc đạt được chất lượng của tiện nghi nội bộ. Nhóm thiết kế đã thách thức không gian và khu vực được thu lại ở ban đầu, dẫn đến khoảng không gian thông tầng và sân vườn rộng rãi đã trở thành nhận dạng chính cho dự án. Điều này đã đạt được trong ngân sách dự án ban đầu. Trung tâm này là nơi tập trung đầy đủ các dịch vụ bao gồm thực hành chung, sức khỏe tình dục, phòng khám ngoại khoa, phòng tư vấn đa chức năng với một loạt các dịch vụ chăm sóc sức khỏe, cũng như phòng tập thể dục, phòng họp và hội nghị, quán cà phê độc lập.

Phương pháp tiếp cận thiết kế bền vững cho dự án là một cách đặt con người vào vị trí trung tâm của thiết kế. Nó là một thiết kế dựa trên sức khỏe toàn bộ cuộc sống – lấy cảm hứng từ những lợi ích của việc tiếp xúc với thiên nhiên, đã được tích hợp để tham gia cả về mức độ tinh thần và thể chất với thông điệp xã hội cơ bản về xúc tiến y tế và thiết kế bền vững.

Tòa nhà được thiết kế để làm mờ ranh giới giữa trong nhà và ngoài trời. Các khu vườn bên trong đã được cung cấp để tối đa hóa sự tiếp xúc với thiên nhiên và các lợi ích môi trường mà nó mang lại. Một mặt bằng hình chữ nhật hiệu quả và nhỏ gọn có hai tầng chính. Tiêu chuẩn xây dựng kỹ thuật xây dựng khung thép và giàn mái gỗ, gạch và vật liệu cách nhiệt kết hợp để đảm bảo một cách tiếp cận hợp lý để tạo ra ngôn ngữ kiến trúc của công trình.

Dự án bao gồm các ý tưởng thiết kế sau:
- Chất lượng môi trường trong nhà tối ưu – Độ xuyên sáng ban ngày cao; cửa sổ có thể hoạt động để thông gió tự nhiên và dọn dẹp ban đêm; nội thất có cảnh quan.

- Hiệu quả năng lượng – chiếu sáng hiệu quả cao; cảm biến ánh sáng cho các khu tiện ích; kính hai lớp hiệu quả cao; và cửa sổ louvre được điều khiển thông qua một trạm thời tiết gắn trên mái nhà để lọc không khí ấm / lạnh và tích hợp thông qua hệ thống sưởi ấm và làm mát để cô lập các khu vực khi cửa sổ mở.

- Hiệu quả sử dụng nước – thu nước mưa, bể chứa nước 80.000 lít và tái sử dụng cho vệ sinh xả nước và tưới tiêu. Giải pháp vận chuyển bền vững – cơ sở đi xe đạp cho nhân viên và người dùng xây dựng bao gồm chỗ đỗ xe đạp an toàn, vòi sen và tủ khóa. Công nghệ năng lượng tái tạo – sưởi ấm nước nóng bằng năng lượng mặt trời; và một hệ thống năng lượng mặt trời quang điện 25kW.


- Tái chế chất thải – tái chế chất thải xây dựng tại chỗ; trạm tái chế chất thải xây dựng thông tin trong khu vực công cộng; và hệ thống ủ phân hữu cơ tại chỗ. Sử dụng vật liệu địa phương, vật liệu tái chế.
Thông tin chi tiết
- Kiến trúc sư: Văn phòng thiết kế DesignInc
- Đội ngũ thiết kế: Michelle Harris, Heidi Lee, Ian Khoo
- Vị trí: Lucas VIC, Úc
- Nhà thầu xây dựng: Nilchoson
- Diện tích: 2850m2
- Năm hoàn thành: 2014
- Ảnh: Dianna Snape
———————-
- Nguồn : Archdaily
- Dịch: Ngô Việt Anh.