Viện bảo tàng nghệ thuật High là công trình công cộng và một bộ sưu tập nghệ thuật chính đáp ứng với đặc điểm hình thái và bối cảnh của tổng thể nhu cầu của một bảo tàng. Truyền thống xây dựng tiến bộ thành phố Atlanta cũng như vị trí như một trung tâm phát triển văn hóa,đã có một ảnh hưởng mạnh lên thiết kế công trình.
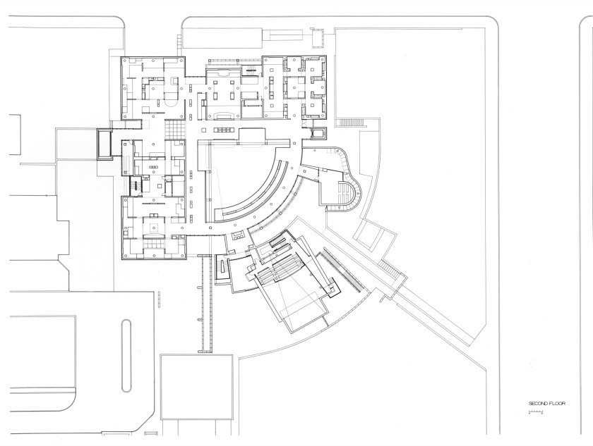
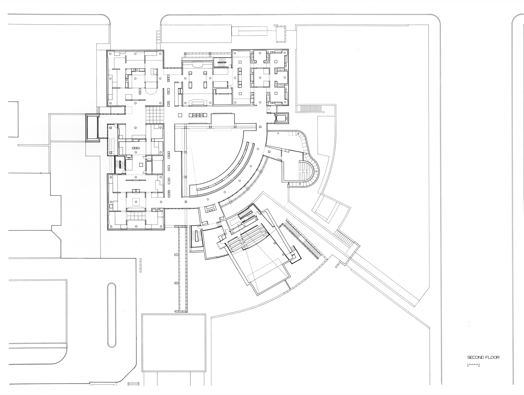
Nằm ở góc đường, giao điểm giữa đường Peachtree và đường Số 16, cách trung tâm thành phố Atlanta khoảng 3.2km, đã đặt bảo tàng vào một vị trí quan trọng trong sự phát triển của thành phố Atlanta và trong khoảng cách đi bộ từ các khu dân cư lân cận với những lối tiếp cận tốt bằng giao thông công cộng. Tổng thể công trình bao gồm 4 góc phần tư cung tròn với một phần được khoét lõm vào, nhằm phân biệt với 3 phần còn lại. Phần cung tròn bị khoét trở thành một không gian thông tầng khổng lồ, hành lang và một trung tâm khánh tiết của bảo tàng.
Đường dốc kéo dài là một yếu tố mang tính biểu tượng vươn ra phía bên ngoài không gian đường phố và một đường dẫn vào đường dốc nội thất trở thành yếu tố cấu thành giao thông chính của công trình. Ở phía cuối của đường dốc là lối vào chính và một khu vực tiếp tân, từ đây người ta có thể đi vào trong khu vực giếng trời cao 4 tầng.
Không gian giếng trời tràn ngập ánh sáng được gợi cảm hứng, và như một sự tường thuật lại, không gian trung tâm của Bảo tàng Guggenheim. Giống như ở Guggenheim, hệ thống đường dốc làm trung gian hòa giải giữa không gian trung tâm và bản thân các tác phẩm nghệ thuật. Tuy nhiên, trong trường hợp của bảo tàng Guggenheim, công năng của đường dốc còn là gallery trưng bày; ở Atlanta, sự phân chia giữa giao thông và không gian trưng bày cho phép không gian trung tâm kiểm soát toàn bộ hệ thống giao thông.

Sự phân chia công năng này cho phép hệ thống tường của khu thông tầng có các cửa sổ, điều này cho phép ánh sáng tự nhiên và định hình các góc nhìn vào thành phố. Các không gian trưng bày được tổ hợp để tạo thành nhiều các khung cảnh cũng như các góc nhìn thoáng rộng hoặc kín đáo để phù hợp với các nhu cầu khác nhau của việc trưng bày.

Ánh sang, bất kể là trực tiếp hay gián tiếp, được xem như một sự mối quan tâm có tính xuyên suốt, bên cạnh khía cạnh công năng của mình, ánh sáng chính là biểu tượng về vai trò của bảo tang như một nơi của sự soi sáng về thẩm mỹ và khai minh cho các giá trị văn hóa. Ý tưởng chính của kiến trúc là thúc đẩy khám phá những giá trị đó, nuôi nấng một sự trân trọng đầy trí tuệ đối với bộ sưu tập cảu bảo tàng thông qua các trải nghiệm về không gian.
——————-
- Tác giả: Megan Sveiven
- Tạp chí Archdaily, 7 tháng 1 năm 2011.
- Bài và ảnh gốc ở đây
- Chuyển ngữ: Bộ môn Lý thuyết và Lịch sử kiến trúc.


