Le Corbusier được chủ tịch Hiệp hội Chủ thợ dệt ủy quyền để thiết kế trụ sở chính của tổ chức này tại Ahmedabad, một thành phố lịch sử trong hoạt động trong thương mại dệt may của Ấn Độ. Công trình là một bản tuyên ngôn đại diện cho quan điểm của Le Corbusier về một nền kiến trúc Ấn Độ hiện đại. Xây dựng vào năm 1954, tòa nhà Hiệp hội thợ dệt được coi công trình đầu tiên trong số bốn công trình (của Le Corbusier) được hoàn thành tại tại Ahmedabad.
Với việc Le Corbusier bắt đầu thiết kế trong môi trường khí hậu nóng hơn hơn, ông đã phát triển một tập hợp các yếu tố kiến trúc để đáp ứng với bối cảnh khí hậu và văn hóa. Ông lấy cảm hứng từ các yếu tố kiến trúc truyền thống của Ấn độ, mô phỏng lại các khung cửa sâu, gờ nhô ra, màn che tạo bóng đổ, các phòng lớn có cột. Ông giới thiệu hệ lam chắn nắng (brises-soleil), được thiết kế để ngăn ánh nắng mặt trời xuyên qua mặt tiền, và sử dụng kết hợp với các mặt đứng có độ sâu lớn và bê tông trần trong nhiều dự án sau này của ông. Được bao quanh bởi không gian mở rộng rãi, công trình Hiệp hội thợ dệt không hề phải cạnh tranh với cấu đô thị tồn tại trước đó, cho phép kiến trúc sư đề xuất một phong cách thẩm mỹ rõ ràng hiện đại.
Tòa nhà nằm giữa đường Ashram ở phía tây và sông Sabarmati về phía đông. Các bức tường phía bắc và phía nam gần như để trống trải và hoàn thiện mặt bên ngoài bằng đá thô và bằng gạch. Các lam chắn nắng trên mặt tiền phía Tây được định hướng theo đường chéo để chặn tầm nhìn từ bên ngoài đường vào phía trong công trình, trong khi cho phép không khí và ánh sáng mặt trời vẫn tiếp xúc gián tiếp vào không gian bên trong. Cây cảnh lan ra từ các mặt đứng, làm sống động bề mặt bê tông trần, đồng thời bổ sung cho khu vườn trên mái. Ở phía sau của tòa nhà, các lam chắn nắng (brises-soleil) vuông góc với mặt đứng, cho phép những làn gió từ sông xuyên qua thoải mái qua đường chu vi bóng đổ của công trình. Ở đây, Le Corbusier thiết kế các lỗ mở nhằm định hình khung nhìn ra bờ sông ở phía dưới.
“Bối cảnh của công trình trong một khu vườn, chế ngự hoàn toàn khung cảnh bờ sông đẹp như tranh vẽ với những người thợ dệt đang nhuộm, phơi vải bông trên triền cát của bờ sông, cùng với bò, trâu và khỉ dầm mình trong làn nước để giải nhiệt. Một bức tranh tổng thể như một lời mời gọi…để định hình khung nhìn từ mỗi tầng nhà của công trình.” Le Corbusier
Được hoàn thành chỉ ngay sau dự án Đơn vị ở Lớn (Unite de Habitation), công trình Trụ sở hiệp hội thợ dệt biểu tượng cho một sự thay đổi trong phong cách kiến trúc của Le Corbusier, bao hàm sự lặp lại nghiêm ngặt của biệt thự Savoye với những đường cong của nhà thờ Đức bà Ronchamp. Mặt đứng thoát khỏi cấu trúc nhà trên cột (pilotis) như trong định nghĩa về Năm điểm kiến trúc mới của Le Corbusier, nhưng được bắt nguồn từ các tác phẩm trước đây của ông ở chỗ nó mở rộng hoàn toàn với mặt nền xung quanh, chắn các cột trụ khỏi cái nhìn của người xem. Mặt bằng vuông vắn và tổ hợp theo lưới trên mặt đứng bên ngoài của công trình tương phản mạnh mẽ không gian nội thất, được thiết kế đặc trưng với những khối lồi và lõm.
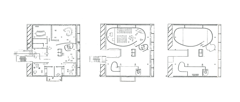
Khi một người di chuyển qua những không gian kẽ, qua những giao điểm của các đường cong và các mặt phẳng trực giao tạo ra một ấn tượng về không gian đóng và mở. Phòng hội nghị được bao bọc bởi một bức tường gạch ốp các panel veneer gỗ cong kéo dài từ tầng 2 đến cao độ của mái công trình. Mái cong của công trình khuếch tán ánh sáng qua cửa sổ trời và tạo thành một bể cạnh trên nóc, nơi mà Le Corbusier đã hy vọng được sử dụng như một bể chứa nước trên mái.
Giao thông được thiết kế như một đường đi dạo, bắt đầu với một đường dốc trải dài từ chỗ để xe đến một không gian thông cao 3 tầng tại trung tâm của công trình. Khi một người đi lên đường dốc, góc nhìn của họ sẽ xuyên qua hệ lam chắn nắng, gợi mở trực tiếp mặt đứng công trình. Lõi cầu thang phóng bay thẳng ra phía trên của không gian thông tầng và mặt đứng chính
Surottam Hutheesing, người đã ủy nhiệm cho Le Corbusier để xây dựng trụ sở này, cũng đã yêu cầu ông thiết kế một nhà riêng của mình. Sau đó, công trình đã được thực hiện thành biệt thự Shodhan sau khi hợp đồng thiết kế ban đầu của Hutheesing của thất bại. Thiết kế thống nhất với đề xuất của kiến trúc về cấu trúc ngôn ngữ kiến trúc của khu vực, sử dụng mặt tường sâu, đục lỗ, hệ lam chắn nắng và bê tông trần. Đối với hợp đồng duy nhất của mình tại Mỹ, Le Corbusier xây dựng nên một sự lặp lại của công trình trụ sở hiện hội thợ dệt vào Công trình Trung tâm nghệ thuật thị giác Carpenter tại Cambridge, Massachusetts.
——-
- Tác giả Rennie Jones
- Tạp chí Archdaily, ngày 7 tháng 01 năm 2014.
- Bài và ảnh gốc tại đây
- Chuyển ngữ: Bộ môn Lý thuyết và Lịch sử kiến trúc


