Tòa nhà mới của Giàn nhạc giao hưởng Szczecin được đặt tại một khu vực lịch sử của “Konzerthaus”, vốn đã bị phá hủy trong chiến tranh thế giới thứ 2 và được bố cục lại một khu vực đô thị trong một khu dân cư gần thành phố lịch sử.Tòa nhà bao chứa một giàn nhạc giao hưởng có 1000 chỗ, một phòng hòa nhạc cho 200 thính giả, một không gian đa năm cho triển lãm, hội nghị và một đại sảnh nơi mà có thể sử dụng để tổ chức sự kiện.

Tòa nhà được bố cục trong một cấu trúc tổng hợp, nhưng đồng thời cũng phức tạp, điều mà được giải quyết thông qua một đường dạo liên tục, nối tất cả các công năng dọc theo một lối đi công cộng duy nhất thông qua tất cả các tầng của công trình.

Ở bên ngoài, giống như những người hàng xóm đã tồn tại trước đó, những tuyến thẳng và cấu trúc hình học của mái được nhấn mạnh. Những đặc điểm này đồng nhất tòa nhà với bối cảnh xung quanh nó.

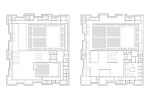
Tổ hợp mặt bằng được xác định bởi một vòng chu vi. Đây là yếu tố chứa đựng hầu hết các không gian phục vụ. Một mặt, điều này cho phép định hình một không gian rỗng cực lớn bên trong nơi mà chứa đựng giàn nhạc giao hưởng cũng như phòng hòa nhạc, mặt khác để xác định mối liên hệ giưa công trình với bối cảnh lân cận.
Một loạt các modul của mái tái hiện không chỉ là yếu tố mang tính biểu hiện, nó cho phép sự hòa nhập của tòa nhà mới vào trong hình ảnh phân mảng đô thị của thành phố. Ở vật liệu của mình, tòa nhà được cảm nhận như một yếu tố ánh sáng; mặt đứng kính, được chiếu sáng từ bên trong, phụ thuộc vào công năng cho phép các cảm nhận khác nhau.
Ngoại thất khiêm nhường và bố cục đơn giản của không gian giao thông trong nội thất tương phản với sự biểu hiện của khán phòng chính.Để phù hợp với truyền thống Trung Âu về khán phòng nhạc cổ điển, trang trí trở nên trang hoàng và công năng. Khán phòng được bố cục theo chuỗi Fibonacci, cái mà từng mảng của nó có khoảng cách tăng dần với từ sân khấu, tạo thành hình dạng của không gian trang trí gợi nhắc lại truyền thống cổ điển thông qua các trang trí hình lá vàng.
- Mieczysław Karłowicz Philharmonic Hall, Szczecin, Poland
- Công năng: Giàn nhạc thính phòng
- Kiến trúc sư: Barozzi/Veiga (Fabrizio Barozzi , Alberto Veiga) (Italia)
- Chủ trì dự án: Pieter Janssens, Agnieszka Samsel
- Nhóm dự án: Marta Grządziel, Isak Mayor, Petra Jossen, Cristina Lucena, Cristina Porta, Ruben Sousa
- Kiến trúc sư địa phương: Studio A4 Sp. z o.o. Jacek Lenart
- Kết cấu: Boma S.L., Fort Polska Sp. z o.o.
- Sắp đặt: Gla Engineering Sp. z o.o., Elseco Sp. z o.o., Anoche Iluminación Arquitectónica
- Âm học: Arau Acustica
- Mặt đứng: Ferrés Arquitectos y Consultores
- Nhà thầu chính: Warbund S.A.
- Diện tích: 3,800 sqm
- Kinh phí: khoảng 30.000.000 Euro
- Hoàn thành: 2014
——————–
- Nguồn: Tạp chí Domus
- Chuyển ngữ: Bộ môn Lý thuyết và lịch sử kiến trúc.






