
Một trong những nguyên tắc cơ bản của kiến trúc được dạy khi bắt đầu các khóa học thiết kế là tầm quan trọng của việc kiên định làm việc theo phương pháp. Một ý tưởng nên được đưa ra một cách tổng thể và được thực hiện như các nguyên tắc thiết kế và sự logic là một điều hiển nhiên đối với bất kì ai, thậm chí ngay cả khi đó là ở cấp sơ đẳng nhất. KTS Paul Rudolph, (1918-1997) thấu hiểu điều này mà không một chút nghi ngờ làm như thế nào để thiết kế thành công một công trình, để có thể được cảm nhận công trình đó như đúng những gì mà nó đã được sinh ra, như là trường hợp với khu nhà Milam của Jacksonville, Florida.
Công trình sử dụng bê tông để tạo ra một mặt đứng phía trước, điều này giúp công trình có thể được cảm nhận thậm chí từ một khoảng cách xa, Rudolph khám phá sự tách biệt của nội thất và ngoại thất không gian cũng như hệ khung thể hiện độc lập với hệ kết cấu phía sau nó. Mặc dù tách biệt khỏi công năng của công trình, các hình chữ nhật và hình vuông của mặt tiền vuông vắn đôi khi lại liên quan nội thất phòng ở các tầng khác nhau do sự hình thành của màn chắn nắng, làm cho thiết kế vừa mang tính gợi mở vừa mang tính công năng một cách trực quan.

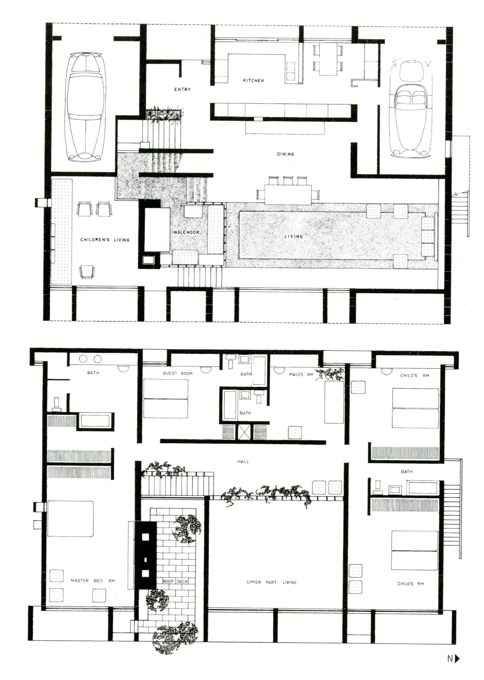
Paul Rudolph được biết đến với mức độ và sử dụng nhất quán các mặt bằng phức tạp, điều đó hiển hiện trong khu căn hộ này cũng như trong các công trình khác của ông. Quy hoạch của khu nhà này ra chỉ dấu cho một phương pháp thiết kế mới cho Rudolph, đó là phương pháp về một hệ thống tổ chức modul nghiêm ngặt. Sự đa dạng không gian và thoả mãn các không gian theo chiều đứng và chiều ngang được phân biệt bằng hệ khung, tường và mặt sàn, những đối tượng được mở rộng ra để tạo sự đa dạng khối tích theo công năng. Trong ví dụ này , tổ chức không gian đã vượt qua việc tổ chức kết cấu, và thiết kế đã được xem xét tỉ mỉ, trước hết ở việc sử dụng không gian .

Các bức tường và sàn nhà được kéo dài ra để tạo ra các hình dạng trau truốt, được mở rộng về phía nam, tạo ra một góc nhìn về Đại Tây Dương. Một trong số rất ít các mục đích của hệ kết cấu là tạo thành những khuôn mẫu (pattern) để chặn những tia nắng nhiệt độ cao ở Florida. Những rèm chắn cũng hoạt động như khung (mullions) cho các cửa sổ kính, biến tường ngoài trở thành một tập hợp các lỗ mở có chiều sâu được lấp đầy chỉ bằng kính.
Ở hai bên phía đông và phía tây của khu nhà, mọc lên các tác phẩm điêu khắc ấn tượng được thiết kế như các đối trọng nhằm củng cố thiết kế cục bộ và chiến lược, điều rất tuyệt vời để định hình các đặc điểm của khu nhà Milam. Sự phối hợp ở dự án này là chúng có khả năng liên kết tới các các hình hộp, điều đã được khám phá và thử nghiệm ở các dự án nhà ở Umbrella và nhà ở Deering.

Mặc dù các góc vuông mạnh mẽ đứng tương phản lại với các sườn đồi cỏ và những bãi biển bằng phẳng kề đó, sự tiếp giáp của các mặt phẳng không cắt nhau tựa như chúng không hấp dẫn hoặc chưa được suy tính cẩn thận. Đã thành tiêu chuẩn trong hầu hết các thiết kế của Rudolph, nhà ở luôn được xây dựng bằng các tấm sàn bê tông trần và sau đó hòan thiện với gạch đất nung (terrazzo) và gạch lượn sóng phản âm (undulating acoustic tiles).

Mặt bằng công trình được thiết kế xung quanh một khu phòng sinh họat chung nằm ở trung tâm được thông tầng, khu vực này được hạ cốt hai bậc, nằm dưới chỗ ăn với chỗ ngắm cảnh một bên và khu làm việc ở một bên, tạo ra một chỗ ngồi thỏai mái. Bậc cũng được chuyển thành một chỗ ngồi tiện dụng, cho phép bỏ đi các đồ nội thất thừa. Sự thay đổi cốt sàn và biến đổi cốt phù hợp theo những đặc điểm không gian cụ thể. Rudolph nhắm đến việc tạo ra những cảm xúc khác nhau bằng việc xem xét những nhu cầu công năng của người sử dụng. Khu phòng đọc có trần thấp và tường tương ứng với các giá sách, khu phòng sinh họat chung có trần cao với các chỗ ngồi giật cấp hoặc góc lò sưởi như tổ chim đặt ở tại một cốt giữa phòng sinh họat chung và chỗ ngắm cảnh.

Phòng ăn phóng một góc nhìn liên tục ra bãi biển qua một khung cửa sổ lớn. Rudolph đã nghiên cứu kiểu bố cục tập trung này cũng như một thành công, cũng như các dự án kế tiếp sau nay của ông được hòan thành với một cấu trúc tương tự. Rudolph đã luôn luôn hướng về “một sự quan tâm mới cho việc thỏa mãn thị giác. Điều này thực sự là trách nhiệm chính của người kiến trúc sư, hơn tất cả các chuyên gia khác có thể làm, kiến trúc sư làm thường xuyên, và tốt hơn rất nhiều”
- Kiến trúc sư: Paul Rudolph
- Địa điểm: Jacksonville, Florida
- Năm xây dựng: 1959-1961
—————————–
- Tác giả: Megan Sveiven
- Tạp chí Archdaily
- Bài và ảnh gốc tại đây
- Chuyển ngữ: Bộ môn Lý thuyết và Lịch sử kiến trúc
Sveiven, Megan. “AD Classics: Milam Residence / Paul Rudolph” 02 Nov 2010. ArchDaily. Accessed 29 Sep 2013. <http://www.archdaily.com/86126>

