Renzo Piano sinh ngày 14/9/1937. Ông là kiến trúc sư người Ý nổi tiếng trên toàn thế giới vào những năm thế kỷ 20. Ông luôn tìm kiếm và phấn đấu tạo ra các giải pháp táo bạo thông qua việc sử dụng sáng tạo công nghệ, đồng thời tôn trọng văn hóa và vật liệu truyền thống. Ông là tác giả của gần 50 công trình nổi tiếng trên toàn thế giới. Với những cống hiến của mình, ông được nhận giải thưởng Pritzker năm 1998 và là Đại sứ thiện chí của Liên Hiệp Quốc

“Sự sáng tạo chỉ thành hiện thực khi bạn chia sẻ sự sáng tạo đó”
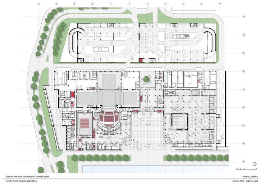
Trung tâm văn hóa Stavros Niarchos
Địa điểm: Kallithea, Athen, Hy lạp
Tính chất: Trung tâm văn hóa phức hợp bao gồm thư viện Quốc Gia Hy Lạp, nhà hát Opera Quốc gia, công viên cảnh quan Stavros Niarchos
- Diện tích: 210.000 m2
- Năm hoàn thành: 2016
- Nguồn vốn: tài trợ bởi Quỹ Stavros Niarchos .
Dự án trị giá 566 triệu euro.
- Năm 1998: Kế hoạch quyên góp quy mô lớn của Quỹ Stavros Niarchos. Ban đầu, quỹ này dự định thực hiện quyên góp riêng cho Thư viện Quốc gia và Nhà hát Opera Quốc gia Hy Lạp.
- Năm 2006, Quỹ Stavros Niarchos đã quyết định xây dựng một khu phức hợp cho hai công trình trên. Sau khi thảo luận với nhà nước Hy Lạp, khu đất được chọn là trường đua ngựa cũ.
- Năm 2008: Renzo Piano được chọn để thiết kế khu tổ hợp trên.
- Năm 2012: công trình bắt đầu xây dựng.
Ý tưởng:

Trung tâm văn hóa Stavros Niarchos nằm ở Kallithea, cách trung tâm Athens 4 km về phía nam. Kallithea là một trong những cảng biển sớm nhất của Athens trên Vịnh Faliro, Kallithea luôn có mối quan hệ chặt chẽ với nước. Tuy nhiên Khu đất xây dựng nằm về trong đường giao thông chính, không sát với khu vực biển. Renzo Piano muốn khôi phục lại các kết nối của khu đất trong thành phố với bờ biển bằng cách tạo cho công trình mang dáng dấp của một ngọn đồi nhân tạo, hướng thẳng ra biển. Tại đây. Công viên cảnh quan chạy trên mặt phẳng dốc, kéo dài tới đỉnh của tòa nhà trung tâm văn hóa, tạo ra một khung cảnh ngoạn mục hùng vĩ hướng ra biển.
Tòa nhà bao gồm hai khối lớn, được ngăn cách bởi một sân ngoài trời rộng rãi, nằm trên một cấu trúc bê tông cốt thép . Tất cả những điều này được kết hợp thành một ngọn đồi nhân tạo cao 100 feet, nơi cung cấp tầm nhìn ấn tượng ra biển và thành phố.

Nhà hát opera nằm tại vị trí cao nhất của công trình, thấp hơn là thư viện. Khu vực mái của thư viện được trồng cây địa phương. Trên mái của nhà hát opera là tấm mái bằng xi măng cốt thép, một lớp vỏ mỏng được gia cố trên một lớp lưới kim loại và các thanh thép cách đều nhau, tạo điểm nhấn công trình, gây ấn tượng từ xa, với ý tưởng là một đám mây lơ lửng trên ngọn đồi công trình. Tấm mái này không chỉ cung cấp bóng râm mà còn là nơi đặt các tấm pin mặt trời ( đây là một trong số các mục tiêu để đạt chứng chỉ LEED Platinum). Với diện tích lớn, tạo 10.000 mét vuông tế bào quang điện, đủ để tạo ra 1,5 megawatt năng lượng cho thư viện và nhà hát opera.

Bên dưới tấm mái khổng lồ của nhà opera, một sân thượng ngoài trời rộng lớn, tại vị trí này có thể nhìn thấy bao quát cảnh quan xung quanh. Không gian này được tiếp cận bởi hai thang máy bằng kính chuyên dụng và con đường dốc xuyên qua công viên. Với vị trí này có thể nhìn toàn cảnh ra ngoài biển, vịnh và xung quanh thành phố.

Ở dưới mặt đất, Renzo Piano thiết kế một con kênh dài 1.300 feet, rộng 100 feet tạo mối quan hệ với biển.Con kênh dường như kéo dài đến vô tận, phản ánh toàn bộ chiều dài của tổ hợp công trình và liên kết trực quan với các không gian còn lại. Bên cạnh kênh là một lối đi dạo rộng dẫn đến sảnh chính công trình.

Từ agora ( trung tâm sinh hoạt xã hội) sảnh chính, nhìn vào những bức tường cao bằng kính trong suốt, có thể nhìn thấy không gian bên trong: ban công của nhà hát opera hay các tầng giá sách của thư viện. Sảnh nhà hát opera rộng, cao 80 feet (với một phòng vé, phòng giữ đồ và quán bar), sử dụng kết cấu bê tông đổ tại chỗ, tạo sự liên kết với các tấm sàn đá cẩm thạch. Khán phòng opera có 1400 chỗ. Các bức tường cong được phủ màu đỏ. Tạo điểm nhấn ấn tượng cho khán phòng. Âm thanh được thiết kế hợp lý, tạo hiệu ứng xuất sắc cho người nghe.

Khu gian Thư viện quốc gia rộng rãi, các phòng đều có ánh sáng tự nhiên. Không gian đóng mở được sắp xếp hài hòa hợp lý, đầy đủ tiện nghi.
Tài liệu tham khảo:
- https://en.wikipedia.org/wiki/Stavros_Niarchos_Foundation_Cultural_Center
- https://www.archdaily.com/790678/stavros-niarchos-foundation-cultural-centre-renzo-piano-building-workshop
- https://www.architecturalrecord.com/articles/11855-stavros-niarchos-foundation-cultural-center-by-renzo-piano-building-workshop
———————-
- Lược dịch: ThS Nguyễn Ngọc Hương
- Bộ môn Lý thuyết và lịch sử kiến trúc.